エリアの確認

現在選択中のエリア
墨田区
こだわりの条件
市区町村 墨田区

検索条件

賃料
 ~ 
建物種別
広さ
 ~ 
築年数
駅徒歩
階数
間取り
物件設備
該当件数 649

『墨田区』の学生向けマンション・アパート賃貸一覧

建物 336 棟 / 部屋 649
並び替え:
表示棟数:

レジディア錦糸町Ⅱ 【03月13日更新】

敷金ゼロ

礼金ゼロ

宅配ボックス

バス・トイレ別

賃料 127,000円 ~ 229,000 共益費 15,000円 ~ 25,000円
間取り 1R ~ 2DK 面積 25.14㎡ ~ 52.78㎡
住所 東京都墨田区4丁目24-5 築年月 2008年1月
交通

JR総武線錦糸町駅』 徒歩8

東京メトロ半蔵門線錦糸町駅』 徒歩10

都営新宿線菊川駅』 徒歩13

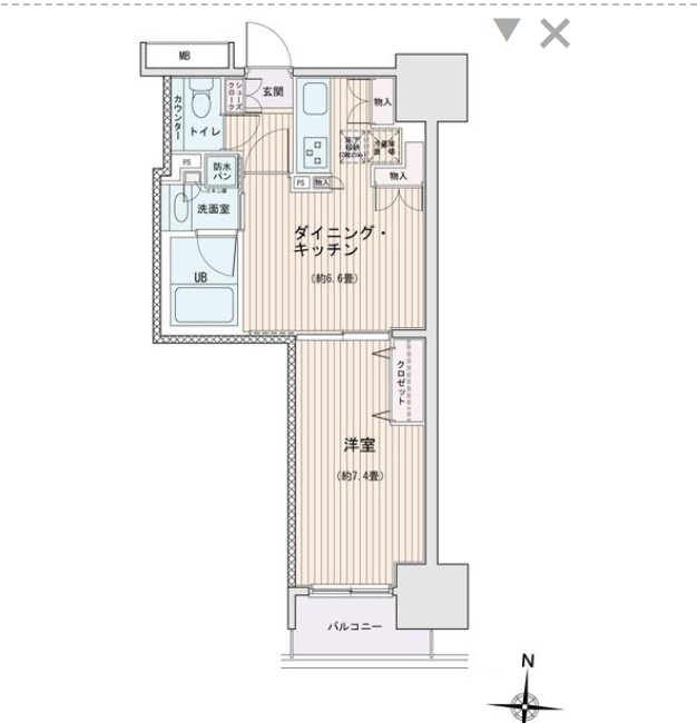
間取り図 階数 間取り 面積 賃料 管理費 敷金 礼金 お気に入り お問い合わせ
1R 3階 1R 25.14㎡ 127,000円 15,000円 0.0ヶ月 0.0ヶ月
1LDK 9階 1LDK 48.76㎡ 210,000円 20,000円 1ヶ月 1ヶ月
2DK 10階 2DK 52.28㎡ 225,000円 25,000円 1ヶ月 0.0ヶ月
2DK 13階 2DK 52.78㎡ 229,000円 20,000円 1ヶ月 1ヶ月
全ての空室情報を表示 その他1 閉じる

レジディア錦糸町 【03月13日更新】

敷金ゼロ

礼金ゼロ

宅配ボックス

バス・トイレ別

賃料 108,000円 ~ 207,000 共益費 15,000円 ~ 20,000円
間取り 1R ~ 2LDK 面積 20.30㎡ ~ 40.02㎡
住所 東京都墨田区錦糸1丁目5-16 築年月 2007年12月
交通

JR総武線錦糸町駅』 徒歩6

東京メトロ半蔵門線錦糸町駅』 徒歩6

都営大江戸線両国駅』 徒歩15

間取り図 階数 間取り 面積 賃料 管理費 敷金 礼金 お気に入り お問い合わせ
1R 2階 1R 20.3㎡ 108,000円 15,000円 0.0ヶ月 0.0ヶ月
1LDK 6階 1LDK 40.02㎡ 207,000円 20,000円 1ヶ月 1ヶ月
1LDK 11階 1LDK 40.02㎡ 202,000円 20,000円 1ヶ月 0.0ヶ月
全ての空室情報を表示 その他0 閉じる

ザ・パーククロス錦糸町レジデンス 【03月13日更新】

礼金ゼロ

賃料 224,000円 ~ 236,000 共益費 10,000円
間取り 1SLDK 面積 45.16㎡ ~ 46.23㎡
住所 東京都墨田区太平4丁目6-16 築年月 2007年3月
交通

東京メトロ半蔵門線錦糸町駅』 徒歩7

JR総武線錦糸町駅』 徒歩7

JR総武線亀戸駅』 徒歩17

間取り図 階数 間取り 面積 賃料 管理費 敷金 礼金 お気に入り お問い合わせ
1SLDK 3階 1SLDK 46.23㎡ 224,000円 10,000円 1ヶ月 0.0ヶ月
1SLDK 5階 1SLDK 46.23㎡ 228,000円 10,000円 1ヶ月 0.0ヶ月
1SLDK 6階 1SLDK 45.16㎡ 236,000円 10,000円 1ヶ月 1ヶ月
全ての空室情報を表示 その他0 閉じる

オーキッドレジデンス両国Ⅱ 【03月13日更新】

礼金ゼロ

宅配ボックス

バス・トイレ別

賃料 179,000 共益費 10,000円
間取り 1DK 面積 40.89㎡
住所 東京都墨田区亀沢4丁目25-6 築年月 2015年10月
交通

JR総武線錦糸町駅』 徒歩13

都営大江戸線両国駅』 徒歩11

都営新宿線菊川駅』 徒歩15

間取り図 階数 間取り 面積 賃料 管理費 敷金 礼金 お気に入り お問い合わせ
1DK 5階 1DK 40.89㎡ 179,000円 10,000円 1ヶ月 0.0ヶ月
全ての空室情報を表示 その他-2 閉じる

エスティメゾン錦糸町Ⅱ 【03月13日更新】

礼金ゼロ

宅配ボックス

バス・トイレ別

賃料 96,000円 ~ 180,000 共益費 10,000円 ~ 12,000円
間取り 1K ~ 1LDK 面積 21.31㎡ ~ 40.00㎡
住所 東京都墨田区江東橋3丁目5-19 築年月 2008年1月
交通

JR総武線錦糸町駅』 徒歩4

東京メトロ半蔵門線錦糸町駅』 徒歩4

都営新宿線住吉駅』 徒歩9

間取り図 階数 間取り 面積 賃料 管理費 敷金 礼金 お気に入り お問い合わせ
1K 2階 1K 21.53㎡ 96,000円 10,000円 1ヶ月 0.0ヶ月
1LDK 4階 1LDK 40㎡ 173,000円 12,000円 1ヶ月 1ヶ月
1K 4階 1K 21.31㎡ 103,000円 10,000円 1ヶ月 0.0ヶ月
1DK 5階 1DK 40㎡ 173,000円 12,000円 1ヶ月 1ヶ月
1DK 6階 1DK 40㎡ 175,000円 12,000円 1ヶ月 0.0ヶ月
1LDK 6階 1LDK 40㎡ 175,000円 12,000円 1ヶ月 0.0ヶ月
1DK 15階 1DK 40㎡ 180,000円 12,000円 1ヶ月 0.0ヶ月
全ての空室情報を表示 その他4 閉じる

プライマル錦糸町 【03月13日更新】

礼金ゼロ

宅配ボックス

賃料 209,000 共益費 11,000円
間取り 1LDK 面積 41.37㎡
住所 東京都墨田区太平4丁目19-6 築年月 2016年1月
交通

東京メトロ半蔵門線錦糸町駅』 徒歩9

JR総武線錦糸町駅』 徒歩11

東京メトロ半蔵門線押上駅』 徒歩12

間取り図 階数 間取り 面積 賃料 管理費 敷金 礼金 お気に入り お問い合わせ
1LDK 5階 1LDK 41.37㎡ 209,000円 11,000円 1ヶ月 0.0ヶ月
全ての空室情報を表示 その他-2 閉じる

パークアクシス錦糸町ヴェール 【03月13日更新】

礼金ゼロ

宅配ボックス

バス・トイレ別

賃料 131,000円 ~ 219,000 共益費 12,000円
間取り 1R ~ 1LDK 面積 26.72㎡ ~ 43.45㎡
住所 東京都墨田区4丁目19-17 築年月 2016年11月
交通

都営新宿線菊川駅』 徒歩9

JR総武線錦糸町駅』 徒歩11

JR総武本線錦糸町駅』 徒歩11

間取り図 階数 間取り 面積 賃料 管理費 敷金 礼金 お気に入り お問い合わせ
1R 2階 1R 26.72㎡ 131,000円 12,000円 1ヶ月 1ヶ月
1LDK 4階 1LDK 43.45㎡ 201,000円 12,000円 1ヶ月 0.0ヶ月
1LDK 7階 1LDK 40.06㎡ 203,000円 12,000円 1ヶ月 0.0ヶ月
1LDK 7階 1LDK 43.45㎡ 214,000円 12,000円 1ヶ月 0.0ヶ月
1LDK 8階 1LDK 40.06㎡ 218,000円 12,000円 1ヶ月 1ヶ月
1LDK 8階 1LDK 43.45㎡ 219,000円 12,000円 1ヶ月 1ヶ月
1LDK 9階 1LDK 43.45㎡ 213,000円 12,000円 1ヶ月 1ヶ月
全ての空室情報を表示 その他4 閉じる

フロンティアレジデンス錦糸公園 【03月13日更新】

礼金ゼロ

新築/築浅

賃料 179,000円 ~ 198,000 共益費 10,000円
間取り 1LDK 面積 32.87㎡ ~ 37.63㎡
住所 東京都墨田区横川5丁目6-4 築年月 2025年1月
交通

東京メトロ半蔵門線押上駅』 徒歩13

東京メトロ半蔵門線錦糸町駅』 徒歩17

JR総武本線錦糸町駅』 徒歩17

間取り図 階数 間取り 面積 賃料 管理費 敷金 礼金 お気に入り お問い合わせ
1LDK 2階 1LDK 34.15㎡ 179,000円 10,000円 1ヶ月 0.0ヶ月
1LDK 2階 1LDK 34.15㎡ 179,000円 10,000円 1ヶ月 0.0ヶ月
1LDK 4階 1LDK 34.15㎡ 187,000円 10,000円 1ヶ月 0.0ヶ月
1LDK 4階 1LDK 35.36㎡ 189,000円 10,000円 1ヶ月 0.0ヶ月
1LDK 4階 1LDK 35.36㎡ 196,000円 10,000円 1ヶ月 0.0ヶ月
1LDK 4階 1LDK 33.74㎡ 189,000円 10,000円 1ヶ月 0.0ヶ月
1LDK 4階 1LDK 33.74㎡ 189,000円 10,000円 1ヶ月 0.0ヶ月
1LDK 4階 1LDK 34.15㎡ 187,000円 10,000円 1ヶ月 0.0ヶ月
1LDK 4階 1LDK 33.74㎡ 189,000円 10,000円 1ヶ月 0.0ヶ月
1LDK 4階 1LDK 34.15㎡ 187,000円 10,000円 1ヶ月 0.0ヶ月
1LDK 4階 1LDK 35.36㎡ 195,000円 10,000円 1ヶ月 0.0ヶ月
1LDK 4階 1LDK 35.36㎡ 195,000円 10,000円 1ヶ月 0.0ヶ月
1LDK 4階 1LDK 33.74㎡ 189,000円 10,000円 1ヶ月 0.0ヶ月
1LDK 4階 1LDK 34.15㎡ 187,000円 10,000円 1ヶ月 0.0ヶ月
1LDK 4階 1LDK 37.63㎡ 197,000円 10,000円 1ヶ月 0.0ヶ月
1LDK 4階 1LDK 34.15㎡ 187,000円 10,000円 1ヶ月 0.0ヶ月
1LDK 4階 1LDK 35.63㎡ 198,000円 10,000円 1ヶ月 0.0ヶ月
1LDK 4階 1LDK 35.36㎡ 195,000円 10,000円 1ヶ月 0.0ヶ月
1LDK 4階 1LDK 33.74㎡ 189,000円 10,000円 1ヶ月 0.0ヶ月
1LDK 4階 1LDK 33.74㎡ 189,000円 10,000円 1ヶ月 0.0ヶ月
1LDK 4階 1LDK 33.74㎡ 189,000円 10,000円 1ヶ月 0.0ヶ月
1LDK 6階 1LDK 32.87㎡ 180,000円 10,000円 1ヶ月 0.0ヶ月
1LDK 6階 1LDK 34.15㎡ 191,000円 10,000円 1ヶ月 0.0ヶ月
全ての空室情報を表示 その他20 閉じる

ベルファース錦糸町South 【03月13日更新】

礼金ゼロ

新築/築浅

宅配ボックス

バス・トイレ別

賃料 142,000円 ~ 225,000 共益費 10,000円 ~ 15,000円
間取り 1DK ~ 1LDK 面積 25.12㎡ ~ 40.45㎡
住所 東京都墨田区江東橋1丁目5-8 築年月 2023年11月
交通

JR総武線錦糸町駅』 徒歩8

東京メトロ半蔵門線錦糸町駅』 徒歩8

都営新宿線菊川駅』 徒歩12

間取り図 階数 間取り 面積 賃料 管理費 敷金 礼金 お気に入り お問い合わせ
1DK 2階 1DK 25.12㎡ 142,000円 10,000円 1ヶ月 0.0ヶ月
1DK 5階 1DK 25.12㎡ 147,000円 10,000円 1ヶ月 0.0ヶ月
1DK 6階 1DK 25.12㎡ 148,000円 10,000円 1ヶ月 0.0ヶ月
1LDK 11階 1LDK 40.45㎡ 213,000円 15,000円 1ヶ月 0.0ヶ月
1LDK 12階 1LDK 40.45㎡ 215,000円 15,000円 1ヶ月 0.0ヶ月
1LDK 13階 1LDK 40.45㎡ 225,000円 15,000円 1ヶ月 0.0ヶ月
全ての空室情報を表示 その他3 閉じる

メインステージ菊川Ⅱ 【03月13日更新】

敷金ゼロ

宅配ボックス

バス・トイレ別

賃料 118,000円 ~ 184,000 共益費 15,000円
間取り 1K ~ 1LDK 面積 25.81㎡ ~ 41.66㎡
住所 東京都墨田区立川4丁目3-16 築年月 2016年6月
交通

都営新宿線菊川駅』 徒歩4

東京メトロ半蔵門線錦糸町駅』 徒歩17

JR総武線錦糸町駅』 徒歩16

間取り図 階数 間取り 面積 賃料 管理費 敷金 礼金 お気に入り お問い合わせ
1LDK 7階 1LDK 41.66㎡ 184,000円 15,000円 0.0ヶ月 1ヶ月
1K 7階 1K 25.81㎡ 118,000円 15,000円 0.0ヶ月 0.5ヶ月
全ての空室情報を表示 その他-1 閉じる
建物 336棟中  1~10棟表示
お気に入りに追加しました
お気に入りを解除しました
検索条件を保存しました